Menu
Home
Fact Sheet
Developer
Location
Site/Floor Plans
Units
Gallery
Perfect Ten
Site Plans
Floor Plans
2 Bedroom
2 Bedroom Penthouse
3 Bedroom
3 Bedroom Penthouse
A6-PH
A1-A
A2
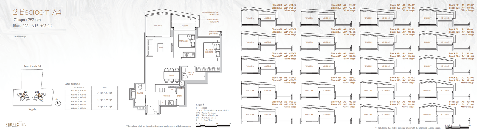
A4
A1
A3
A5-A
A4-A
A5
A6
A2-A
A2-PH
A1-PH
A4-PH
A5-PH
A3-PH
B1
B4
B3
B2
B1-PH
B4-PH
B3-PH
B2-PH
Register Your Interest
Book an appointment to view show flat or send us an inquiry. We will get back to you as soon as possible.
By submitting this form, I agree to be contacted by the Perfect Ten appointed sales team and its associates from 81330501-perfect-ten.eraprojects.sg. I also agree to the Privacy Policy of this website.
Submit
Connect with WeChat
×
WeChat ID:
HP81330501
copy